戸建2階っていったいどんな間取りなの?そんな疑問にお応えすべく、本記事では戸建2階の解説から、戸建住宅のメリット、デメリットをお伝えします。
※このサイトは広告が含まれております。リンク先の他社サイトにてお買い求めの商品、サービス等について一切の責任を負いません。
戸建2階の定義

戸建2階イメージ
戸建2階とは、2階建ての戸建住宅のことです。そもそも戸建住宅とは、一般的に一つの建物に一世帯のみが暮らす家のことを言います。ただし法的な定義はなく、最近では2世帯住宅も増えてきているため、あくまで「一つの家族」が一緒に住んでいるということです。
戸建住宅と集合住宅
戸建住宅の反対にあるのがマンションなどの集合住宅です。集合住宅では他の住民と壁を隔てて隣り合わせになりますので、ホームパーティーや赤ちゃんの夜泣き、深夜帯の洗濯など、特別非常識な生活を送るわけではなくとも、ご近所付き合いや音のトラブルに配慮する必要があります。また建物や設備、住人間でのルールの維持管理を行う管理組合があり、ペットの飼育や庭先でのガーデニングやバーベキューなどは管理規約による制限があり、車やバイクを購入した際には駐車場代を払う必要があります。戸建住宅ではどのように暮らすか、自分たち家族の意見をそのまま反映することができる分、個人の責任が重くなります。
しかし最近では多くのハウスメーカーで充実したアフターサービスを行っているため、専門家の意見を聞きながら集合住宅と変わらない適切な維持管理を行い、長く快適により自由な暮らしを満喫することができます。
どちらが人気? 都心と郊外でどの程度条件が変わる?
一般的にマンションは一戸建より価格が安いと言われてきました。しかし近年では都心のど真ん中でセキュリティの高い高級マンション、所謂億ションと呼ばれるものが年々増加しています。さらには再開発と称して駅と一体的に建てられるマンションでは雨に濡れることなく通勤や買い物、日常生活を送ることができます。住宅の売買における価格を推測する際に役立つ指標はいくつかありますが、多くの場合価格は路線価に左右されます。路線価は国税庁のホームページから自分で調べることができますが、その土地の価値を表すものです。
郊外では現在でもマンションの方が価格を抑えられることが多いかもしれませんが、人口の密集した都心部では住み心地や資産価値、維持管理、あらゆる観点から考えても一概にどちらが人気であると断言することは難しいでしょう。
戸建2階の間取図サンプル
それでは、間取図を確認しましょう。一般的な戸建2階の間取りとして、総2階建てと部分2階建ての構造があります。

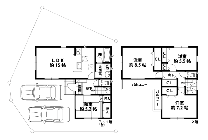
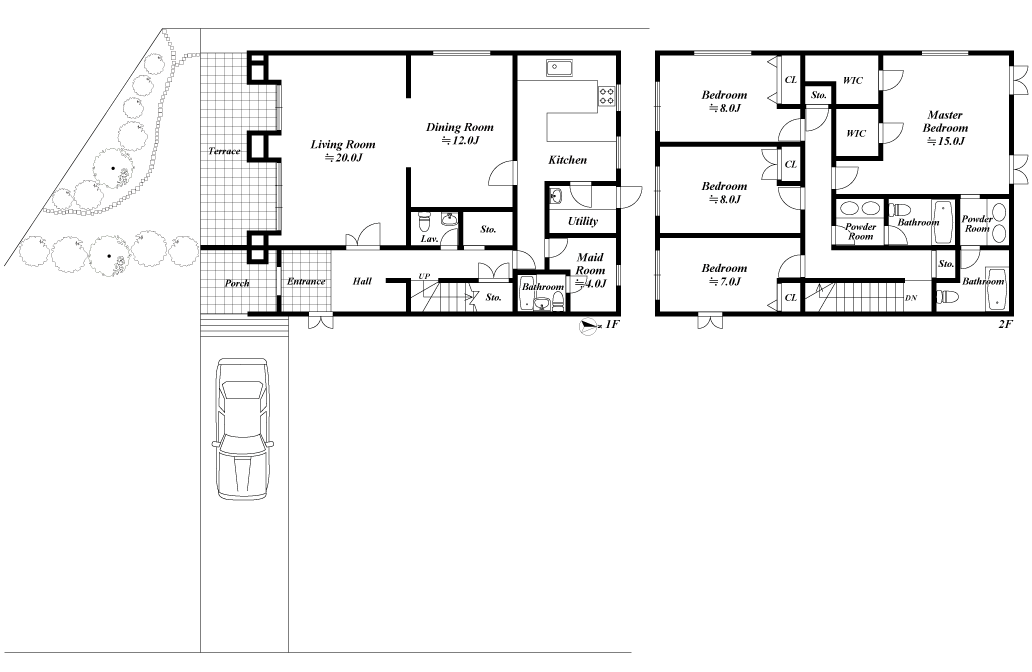
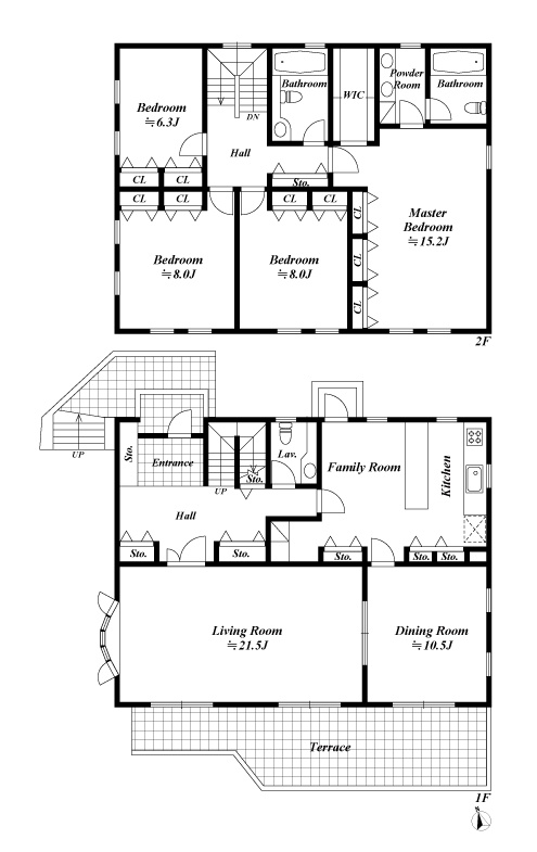
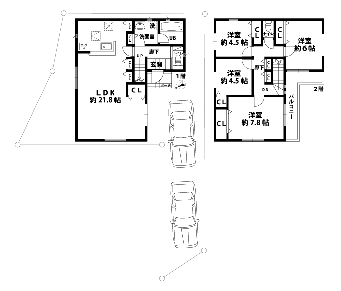
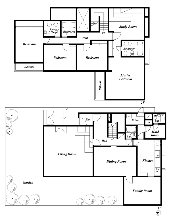
戸建2階の間取図
総2階建てとは、1階と2階がほぼ同じつくりをした住宅のことで、部分2階建てとは、1階よりも2階が小さい面積になっているつくりです。主な部屋を1階に集めて、2階は寝室、子ども部屋などのプライベートルームにするのが一般的なスタイルです。多くの場合、1階のリビングとなるスペースを広く取るため、2階よりも1階のほうが広くなりますが、殆ど同じ大きさの1階と2階の形をしているこの間取りは、総2階建てに分類されます。

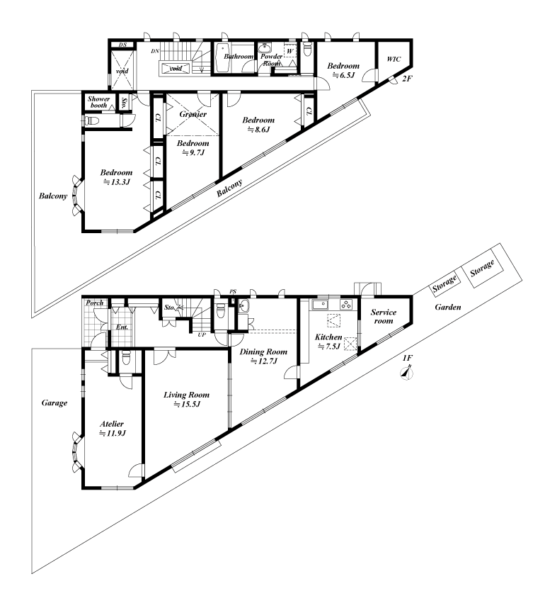
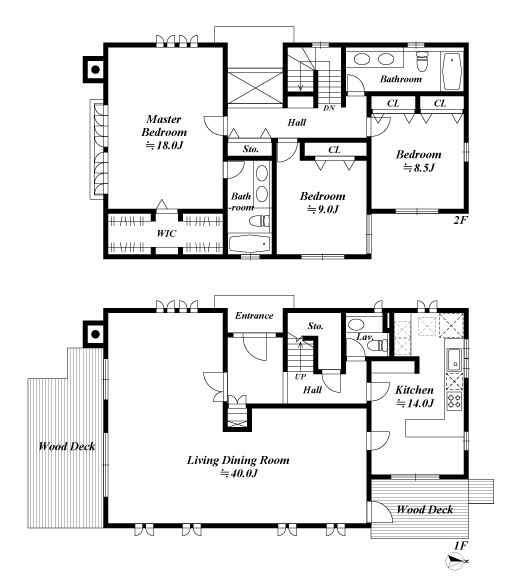
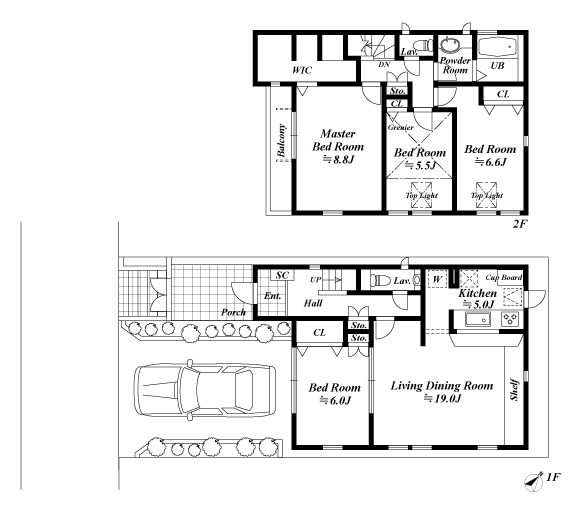
戸建2階の間取図
一方で、こちらの間取りは、1階に対して2階が小さくなっています。その分、2階のバルコニーを広く確保することが出来ています。また、リビング等の団欒スペースに面して庭やテラスを設けている間取りも多くあります。子供の遊び場や洗濯物を干す場所などと言った実用的な使い方から、ガーデニングや家の中からの景観を楽しんだり、様々な活用方法があります。部分2階建ての場合は2階の一角に広いバルコニーを設けている為、最近ではこの庭やバルコニーで流行りのDIYをしたり、アウトドア用品を広げてグランピングを楽しむ文化も増えています。
また、マンションとは違い、戸建住宅で手に入れやすいものとして、広いバルコニーや庭づくりの他に駐車場があります。車を持つ世帯が減ってきたとは言え、いざ購入を考えたときに近くで駐車場が手に入らないことも少なくありません。郊外の生活や、都心部でも日常的に車を利用する生活をイメージするのであれば、玄関を出てすぐに駐車場にたどり着ける戸建住宅での暮らしが理想的であると言えるでしょう。

戸建2階の間取り
戸建2階 間取りのまとめ
戸建2階は、マンションとは違い、個人で明確な敷地を所有することができる為、駐車場や庭等を確保し易く、かつご近所さんとの騒音等によるトラブルも防ぎやすい住宅です。1階と2階の広さの違いも、土地の利用方法によって異なりますが、庭やテラスといったアウトドアを楽しむ空間も充実させやすい住宅と言えます。また、間取りとしても3LDKや4LDKを確保し易いので、家族それぞれのプライバシーに対応し易い住宅と言えるでしょう。
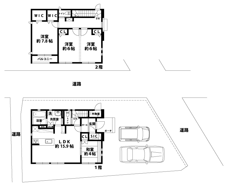
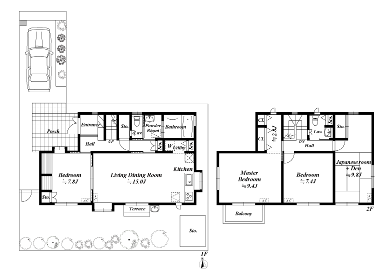
戸建2階の間取りプラン集
当サイトでは、今までに50万をこえる間取図を作成してきました。こちらでは、戸建2階の間取図を紹介します。PDFでダウンロードも可能です。プラン集としてご利用ください。
間取図種類ごとの定義・特徴
※タップで各カテゴリページが開きます。

.png)
.png)
.png)
.png)
.png)
.png)
.png)
.png)
.png)
.png)
.png)
.png)
.png)
.png)
.png)
.png)
.png)
.png)
.png)
.png)
.png)
.png)
.png)
.png)
.png)
.png)
.png)
.png)
.png)
.png)
.png)
.png)
.png)
.png)
.png)
.png)
.png)
.png)
.png)
.png)
.png)
.png)
.png)
.png)
.png)
.png)
.png)
.png)
.png)
.png)
.png)
.png)
.png)
.png)
.png)
.png)
.png)
.png)
.png)
.png)
.png)
.png)
.png)
.png)
.png)
.png)
.png)
.png)
.png)
.png)
.png)
.png)
.png)
.png)
.png)
.png)
.png)
.png)
.png)
.png)
.png)
.png)
.png)
.png)
.png)
.png)
.png)
.png)
.png)
.png)
.png)
.png)
.png)
.png)
.png)
.png)
.png)
.png)
.png)
.png)
.png)
.png)
.png)
.png)
.png)
.png)
.png)
.png)
.png)
.png)
.png)
.png)
.png)
.png)
.png)
.png)
.png)
.png)
.png)
.png)
.png)
.png)
.png)
.png)
.png)
.png)
.png)
.png)
.png)
.png)
.png)
.png)
.png)
.png)
.png)
.png)
.png)
.png)
.png)
.png)
.png)
.png)
.png)
.png)
.png)
.png)
.png)
.png)
.png)
.png)
.png)
.png)
.png)
.png)
.png)
.png)
.png)
.png)
.png)
.png)
.png)
.png)
.png)
.png)
.png)
.png)
.png)
.png)
.png)
.png)
.png)
.png)
.png)










































































