店舗や事務所と言っても、業務形態によって様々な間取りがあります。今回は、店舗や事務所の間取りを確認する上で、どのような種類があり、どのような点を見ていけばよいのかを間取図を確認しながら解説します。
※このサイトは広告が含まれております。リンク先の他社サイトにてお買い求めの商品、サービス等について一切の責任を負いません。
店舗・事務所の定義

事務所イメージ
店舗とは、日常的に来客があり、その場所で商品の売買やサービスの提供、つまり接客を行う場所として定義できます。事務所とは、いわゆるデスクワーク等の執務を行う場所と定義でき、必ずしも来客があるとは限りません。来客がある場合も、常にあるのか、稀にあるのかは業務形態によって異なります。来訪者の視線や動きに対して、どのように配慮するのかという点が両者の大きな違いです。
店舗の間取図サンプル
さっそく、間取図を確認しましょう。

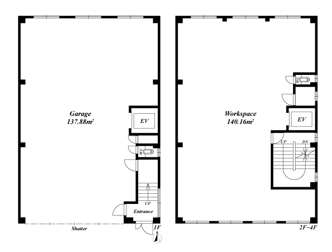
道路に多く面している間取り

道路から奥行のある間取り
とてもシンプルな例です。店舗は、日常的に来客に対して配慮する必要がある為、駐車場の有無や、店舗内部が外からどのように見えるかがとても重要です。水回りの設備は、トイレのみあるタイプが必要最低限ですが、流し台もあると、なお使い勝手が良いです。道路に面している面が広ければ広いほど、中の様子を外へ伝えやすいですが、その分日の光も多く当たります。商品によっては、日の光が当たることを避けたい場合もあるので、そのような場合は、建物が道路に対して奥行のある間取りを採用すると良いでしょう。

飲食関係の店舗の間取図

飲食関係の店舗の間取図
飲食関係の店舗の場合は、キッチンがどこに位置しているのかがとても重要です。キッチンにある設備を専門的には厨房設備と呼びますが、この厨房設備は位置を変更することが難しいです。入口の近くにキッチンがある場合は入って先ずキッチンで注文をするタイプ、奥にキッチンがある場合は先ず席についてオーダーをするタイプ等、キッチンの位置によって業務の種類に対する間取りの愛称があります。
また、トイレの位置も重要です。飲食であれば、トイレが見やすい方が良いか、内装に合わせてあまり目立たなくしたいか等の全く違う考え方があります。キッチンと同様に、トイレも簡単には動かせません。店舗のコンセプトに合わせて間取りを選択する必要があります。そして、飲食系は収納も充実させる必要があります。やはり、食器やグラスの予備、コースター等の消耗備品の保管等、しまっておく必要のあるものが多いのが飲食系の特徴ですので、収納スペースはよく確認した方が良いです。
事務所の間取図サンプル
事務所の場合は、店舗と違い、来客よりも従業員の集中できる環境に気を使うべきです。その為、1階である必要性もあまりなく、むしろ静かに集中できたり、日の光が当たり易い高層階に人気があります。
間取図を確認しましょう。

事務所の間取図

事務所の間取図
広さは大小様々ですが、従業員の数によって決めればよいです。設備は、トイレと流し台があれば十分ですが、最近ではシャワー室や仮眠室等、休憩時間のリフレッシュスペースに気を遣う事業者も増えています。執務空間の広さの目安として、一人当たりの執務スペースがどれくらいの面積が妥当かという指標があります。事務所の面積のあくまで平均的な目安ですが、10㎡~12㎡/1人です。坪で表すと3.8坪程度です。例えば、右の例では、事務所面積が50帖ですので、㎡に換算すると約82.5㎡となり、8人程度で働くのが平均値となります。
但し、この一人当たりの目安は中規模から大規模オフィスまで幅広い平均ですので、必ずその面積内で働かなくてはならない基準ではありません。業務形態に応じて、柔軟に判断する必要があります。事務所ですので、応接室があれば来客にも十分に対応できます。会議室としても個室は便利です。但し、来客の際は、その応接室まで外部者を通行させることになりますので、執務空間のレイアウトには注意が必要です。
住宅を事務所化した間取り
最近ではインターネット設備の進化から、スモールオフィス・ホームオフィス(SOHO)と言われるように、住宅に併設した事務所スペースを求める方もいます。

住宅を事務所化した間取り
これは間取りだけ見れば一見ただの住宅と変わりありませんが、法的な注意点があります。居住用の賃貸物件を勝手に事務所として利用登録すると、規約違反となり退去処分を受けてしまう可能性があります。事務所利用をすると不特定多数の人が頻繁に出入りする可能性があり、他の入居者の迷惑になるためです。事務所として利用可能であっても、事業の種類によっては入居できないこともありますので注意して下さい。
またマンションのオーナーは不動産登記登録を行う際に、居住用と事業用のいずれかの用途を登記するのですが、この用途によって固定資産税の税率が異なります。一般的にマンションでは、居住用の固定資産税よりも事業用の固定資産税が高くなると言われていますので、居住用として登記している物件を事務所利用してしまうと、脱税にあたる可能性もあるので、不動産会社の専門家へしっかりと確認しましょう。
店舗・事務所 間取りのまとめ
店舗・事務所を探す際には、目的に合った必要設備や、来客者からの見え方等を考慮した上で、間取りを確認しましょう。特に、飲食店舗の場合、トイレやキッチン等の水回り設備は動かせない場合が殆どですので、間取図を確認する際には、その位置もしっかりと把握しましょう。事務所は、従業員数によって広さも様々です。応接スペースがあれば、来客だけでなく会議等にも対応できるのでとても便利ですが、入口から応接室までのルートは確認した方が良いです。
また、昨今流行りのSOHOという事務所形態があります。しかし、登記登録という一般的に聞き慣れないものの、建物には必ず登録されている決められた事項があり、居住用の物件を事業用として利用することは規定違反となってしまいますので、建物のオーナー側と、使い方のルールや行う事業の内容をしっかりと共有した上で、物件を決めることをおすすめします。
店舗・事務所の間取りプラン集
当サイトでは、今までに50万をこえる間取図を作成してきました。こちらでは、店舗・事務所の間取図を紹介します。PDFでダウンロードも可能です。プラン集としてご利用ください。
間取図種類ごとの定義・特徴
※タップで各カテゴリページが開きます。

.png)
.png)
.png)
.png)
.png)
.png)
.png)
.png)
.png)
.png)
.png)
.png)
.png)
.png)
.png)
.png)
.png)
.png)
.png)
.png)
.png)
.png)
.png)
.png)
.png)
.png)
.png)
.png)










































































