2LDKっていったいどんな間取りなの?そんな疑問にお応えすべく、本記事では2LDKの解説から、2LDKと3LDK、2LDKと3K、2LDKと3DKとの違い等をお伝えします。
※このサイトは広告が含まれております。リンク先の他社サイトにてお買い求めの商品、サービス等について一切の責任を負いません。
2LDKの定義

2LDKイメージ
2LDKとは洋室2部屋と広さ10畳以上のダイニングキッチンがある間取りを言います。ダイニングキッチンと同じ空間にリビングスペースがあり、趣味を充実させたい贅沢な一人暮らしから、家族で過ごす時間の多いファミリーまで、どんな家族構成にも対応できる人気の高い間取りです。賃貸アパートからマンションまで、様々な集合住宅で採用されているので比較物件も多く、見つけやすい間取りと言えるでしょう。ただしリビングの位置によって部屋のイメージや家具のレイアウトが大きく変わってくるので、洋室までの動線やバルコニーとの関係性に注目しましょう。
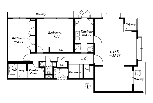
2LDKの間取図サンプル
それでは、実際に間取図で確認してみましょう。

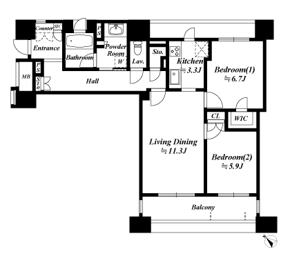
2LDK

2LDK

2LDK
よく見かけるのが左側の例である、玄関を入って左右に洋室2室があり、突き当りにリビングダイニングが設けられた間取りです。この間取りはリビングダイニングがバルコニーに面していて風通しもよく、共有スペースを明るく広々と利用できるため、家族向けに人気で、洋室の一部屋を両親の寝室に、もう一部屋を子供部屋にする方が多くいます。
2人暮らしと考えてもこれだけ広いリビングダイニングがあれば、自由に家具をレイアウトすることが出来てお互いの心地よいスペースを確保することが出来ます。マンションの場合、洋室は共用通路(外廊下)に面している場合が多いため、採光や換気は取りにくい場合もありますが、玄関からすぐにアクセスできることでプライバシーが守られるメリットもあります。
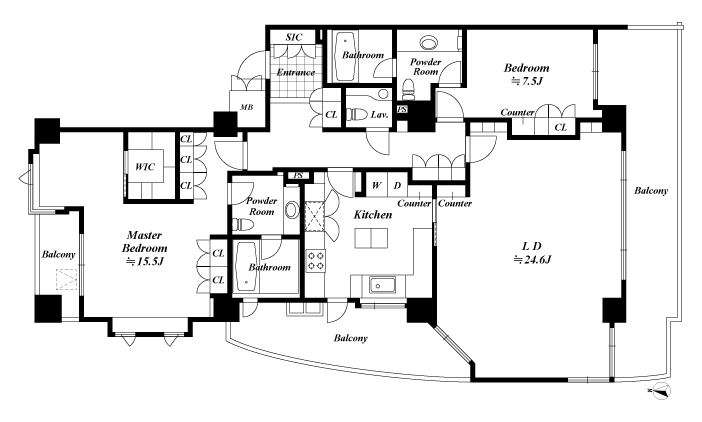
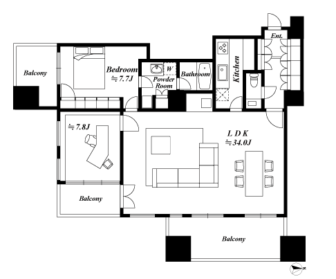
真ん中及び右側の例である、リビングダイニングに洋室が隣接している、洋室もバルコニーに面している間取りでは、洋室とリビングダイニングの扉を開ければ用途の異なる共用スペースとして使うことも可能です。洋室がどれだけ独立しているかは、同居者との関係や生活スタイルに合わせて選びましょう。
リビングダイニングキッチンの間取りでは、キッチンの形状もよく見る必要があります。カウンター付きのオープンキッチンがよいのか、リビングダイニングとは独立したスペースが良いのか、袖壁や扉一つで使い勝手が異なります。特に、家族で住む場合はキッチンの位置や広さが非常に重要です。どのようなキッチンが使い易いか、イメージしながら確認してみましょう。
2LDKと間違えやすい間取図の種類を解説
2LDKは部屋数やリビング・ダイニングの広さで、3LDKや3K、3DKと混同されやすい間取りです。それぞれの違いを詳しく解説します。
2LDKと3LDKの違いは?
2LDKと3LDKではいずれも、10畳以上のコミュニケーションスペースを確保することが出来ます。実際の間取図で確認してみましょう。

2LDK

3LDK

3LDK
3LDKのほとんどは玄関を入って両側に洋室があり、リビングダイニングに面してオープンにできる和室がある間取りです。子育て世代をターゲットとした代表的な間取りで、和室部分を客室とすることが多いでしょう。左の例のように、リビングダイニングではなく、洋室がバルコニーに面しているタイプもまれにありますが、1部屋はリビングダイニングと一体利用できることが多いです。これは、建築基準法の採光の問題で、洋室を抜けてリビングダイニングに光が入る計画となっていますので、洋室とリビングダイニングは一体的に利用できる大きな扉で仕切られていることが通常です。
この1部屋は来客や子供の人数、増えていく家具の収納スペースなど様々な使い方を想定することができますので、生活スタイルに合わせて、部屋の使い方を決めればよいでしょう。3LDKの間取りでは面積に対する賃料の問題から、リビングダイニングが小さくなってしまうこともあります。もし洋室が2部屋で十分であれば、日常的に家族団らんするリビングを広く取れることの多い、2LDKの方が効率的であるとも考えられます。
2LDKと3Kの違いは?
最近の住宅では3Kという間取りは珍しいと言えます。3Kの間取りとは洋室(寝室)3部屋+6畳未満のキッチンスペースとなりますが、こちらは共有スペースがほとんどないことになります。間取図の中で確認してみましょう。

2LDK

3K

1R
3Kの間取りでは、洋室2部屋と和室1部屋の中心にキッチンスペースがありますが、ダイニングスペース設けるには広さが足りません。シェアハウスなどでは、このような3Kの間取りも望ましいかもしれませんが、実際にはキッチンスペースと隣の洋室を一体利用して2LDKに近い使い方をするかもしれません。
キッチンと洋室を仕切る扉によって、部屋のレイアウトの自由度が減ることを考えると、2LDKのように、キッチンとダイニング、そしてリビングを含めた広い一室空間のある2LDKを選択し、必要に応じてパーテーションなどでスペースを区切ることを考える方が使いやすいかもしれません。
2LDKと3DKの違いは?
2LDKは洋室2室と10畳以上のリビングダイニングスペース、3DKは洋室3室と6畳から10畳未満のダイニングスペースのある間取りです。3DKの間取りは比較的2LDKと似ていて、リビングの代わりに洋室が1部屋あるタイプが多く、来客やリモートワークに合わせて、広いダイニングスペースの一部を部屋として区切れるような間取りとなります。
または廊下がなく玄関から直接ダイニングスペースに入れる間取りもありますが、3Kと同じく、ゆったりとくつろげるダイニングスペースをつくるには、広さが足りず、家具のレイアウトが難しいかもしれません。3DKは比較的築年数の古い物件に多いので、同じ部屋の規模でも家賃を抑えるにはよい選択肢となりますが、今では件数が多くはないため、3DKというお部屋探しに苦労するかもしれません。

2LDK

3DK

3DK
2LDKの間取図のように、LDKタイプの場合はオープンキッチンとする間取りが多く、将来的に子育てを考える方であれば、空間が明るく、風通しも良い、十分な広さのあるLDKで家族との団らんや日常的にくつろぐスペースを確保する方が良いと考えられます。
2LDK 間取りのまとめ
2LDKは最近の新築マンションでは多く見られる間取りですが、3LDKに比べると数が多くないと言えます。しかし1部屋少なく全体の広さや使い方はあまり変わらないままでお値段を抑えることが出来る為、お得な間取りとも言えます。家族が増えることで少し手狭に思えることもあるかもしれませんが、子育て前の夫婦や収入に余裕のある独身の方、子供が独立した老夫婦など、様々な方に適しています。リビングの位置関係やキッチンの形状、各部屋の日当たりや動線などをよく考えて、生活スタイルに適した間取りを探しましょう。
2LDKの間取りプラン集
当サイトでは、今までに50万をこえる間取図を作成してきました。こちらでは、2LDKの間取図を紹介します。PDFでダウンロードも可能です。プラン集としてご利用ください。
間取図種類ごとの定義・特徴
※タップで各カテゴリページが開きます。

.png)
.png)
.png)
.png)
.png)
.png)
.png)
.png)
.png)
.png)
.png)
.png)
.png)
.png)
.png)
.png)
.png)
.png)
.png)
.png)
.png)
.png)
.png)
.png)
.png)
.png)
.png)
.png)
.png)
.png)
.png)
.png)
.png)
.png)
.png)
.png)
.png)
.png)
.png)
.png)
.png)
.png)
.png)
.png)
.png)
.png)
.png)
.png)
.png)
.png)
.png)
.png)
.png)
.png)
.png)
.png)
.png)
.png)
.png)
.png)
.png)
.png)
.png)
.png)
.png)
.png)
.png)
.png)
.png)
.png)
.png)
.png)
.png)
.png)
.png)
.png)
.png)
.png)
.png)
.png)
.png)
.png)
.png)
.png)
.png)
.png)
.png)
.png)
.png)
.png)
.png)
.png)
.png)
.png)
.png)
.png)
.png)
.png)
.png)
.png)
.png)
.png)
.png)
.png)
.png)
.png)
.png)
.png)
.png)
.png)
.png)
.png)









































































