戸建3階っていったいどんな間取りなの?そんな疑問にお応えすべく、本記事では戸建3階の解説から、戸建住宅のメリット、デメリットをお伝えします。
※このサイトは広告が含まれております。リンク先の他社サイトにてお買い求めの商品、サービス等について一切の責任を負いません。
戸建3階の定義

戸建3階イメージ
戸建3階とは、3階建ての一軒家であり、一つの家に一つの家族が住んでいる形式を言います。ここ数十年の間に都心部で急増した住宅タイプとなります。土地の高い都市部では、40~50年前の一軒家を解体して2~3軒の一軒家に建て替える場合がよくあります。この建て替えの際に、根強い需要があるのが戸建3階です。可能な限り建物を上に広げることで、狭い土地を最大限有効に利用して、広い床面積を確保することができます。土地の面積に対してかかる重量が重くなるため、建築コストが高くなる場合もありますが、必要となる土地の購入資金は安く済むのでトータルで考えると、2階建てや平屋を建てる費用とあまり変わらない、または安くなることもあります。
都心部で土地を探す選択肢が広がるという意味で、戸建3階の間取りには大きなメリットがあります。また、2階建の昔から住んでいた家を、家族構成の変化に合わせて3階建てに建て替えることで、必要な部屋を確保するというケースも多いです。これは、建物を建てる技術が向上した為、実現しているケースとなります。
戸建3階の間取図サンプル
戸建3階の間取りのポイントは、階数が多いと間取りの中で階段に必要なスペースが大きくなるということと、生活の中心となる部屋が、どの階に属しているのかということです。縦移動が多い為、掃除や洗濯などの日常的な家事動線には注意が必要です。例えば、洗濯機のある階と、バルコニーのある階が異なれば、当然洗濯物を階段の上り下りで運ぶ必要があります。階の上り下りが難しい高齢者との同居に配慮して、ホームエレベーターを設置することもあります。それでは間取図を確認しましょう。

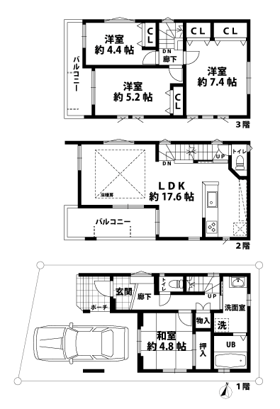
戸建3階の間取り
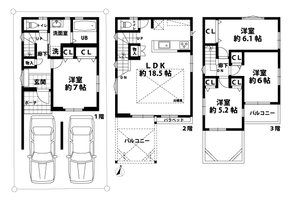
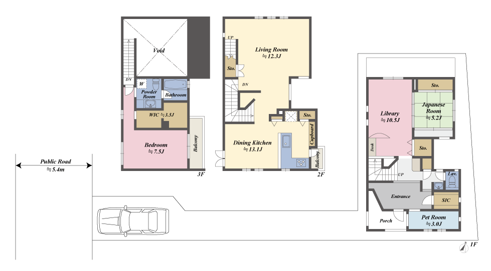
1階から3階のどの階にどのような部屋が設けられているのかが、間取りを読み解く上で重要となります。LDKや寝室などの主な居住空間を上階に持ってくることで、お住まいの地域が大雨などによる浸水被害を受けても、家財や貴重品が水没する危険を避けることも出来ます。また、1フロアの面積は狭くなりがちな為、LDKのみでフロアが構成される場合もありますが、個室がLDKとは別のフロアにあるので、各フロアの独立性を保つことができ、家族間のプライベートを確保しつつ、生活動線の中心にLDKがあるコミュニケーションの取り易い間取りとなっています。
一方で、この例の間取りでは、先ほどの述べた通り、一階が洗濯機置き場になっていますが、干すバルコニーは2階と3階にありますので、日当たりにもよりますが、階段で洗濯物を運ぶ必要があります。

戸建3階の間取図
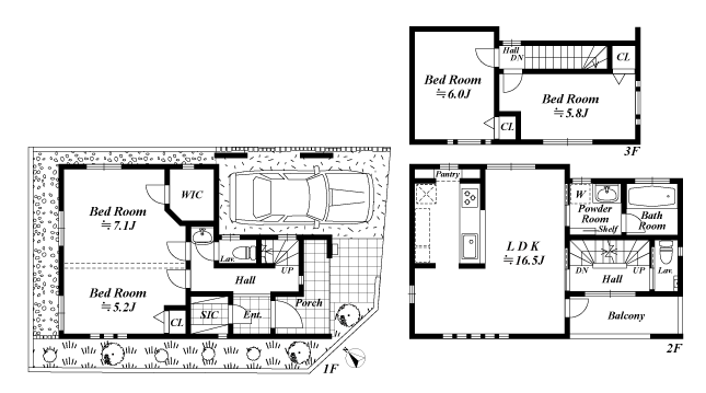
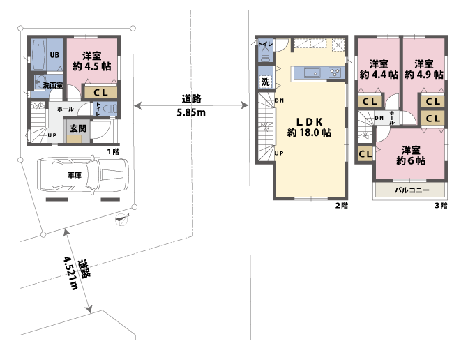
3階建ては、2階建てよりもスペースに余裕が生まれるので、趣味の部屋やストレージ空間などを作ることも考えられます。車やバイクが好きな方は、1階をビルドインガレージとして、様々に利用しつつ、住空間を上の階に確保することで、来客等にも対応できる間取りとすることも出来ます。

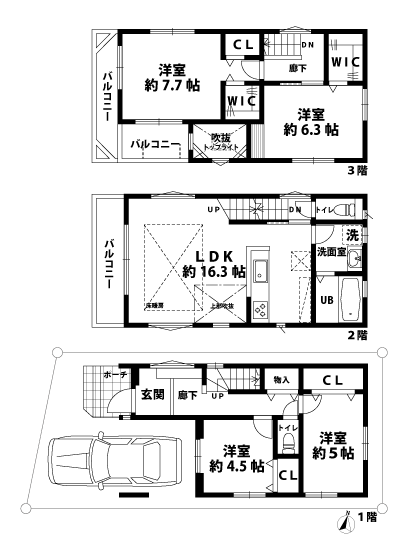
戸建3階の間取図
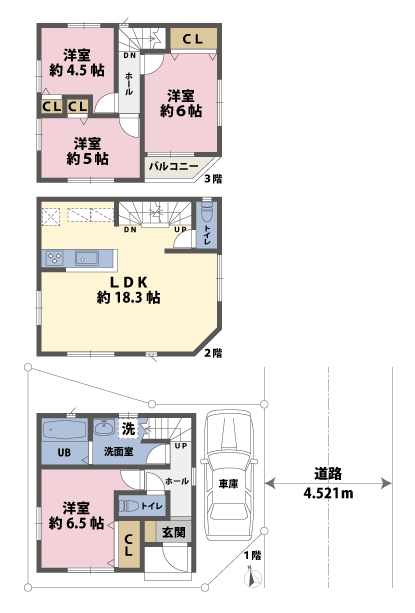
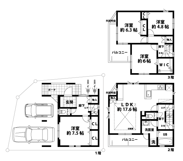
縦に広く使える3階建ての特徴を生かし、リビングや階段を吹抜けとしたり、3階にもリビングのようなスペースを設置することで、眺望や外の光を楽しむ為の団欒空間を確保している間取りもあります。

戸建3階の間取図
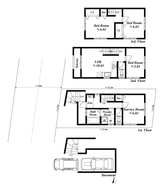
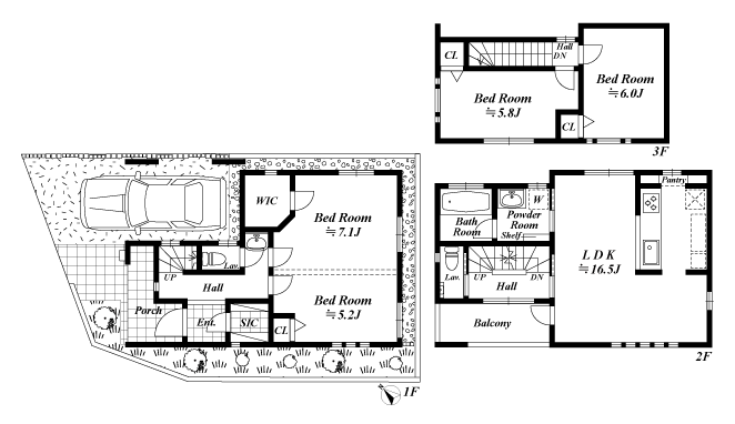
3階建てというフロアが多いメリットを生かして、2世帯住宅にも利用できます。近年2世帯住宅を建てる場合は、住みやすさを重視して水回りや玄関をそれぞれの世帯に設ける傾向があります。しかし、道路に広く面した敷地は土地としての価値も高く、都心部で探すことは簡単ではありません。戸建3階であれば、各フロアの独立性を活用して、1階を親世代、2~3階を子世帯で利用することも考えられます。玄関を分けてそれぞれのセキュリティを確保しておけば、将来家族構成が変わったときに、使わなくなったスペースを賃貸することも可能です。
戸建3階 間取りのまとめ
都心部で広い居室を求めるのであれば戸建3階は最適の間取りとなるでしょう。どの階にLDK等の生活の中心となる部屋を設けるかによって、それぞれの生活スタイルに合わせて工夫した、オリジナルの間取りとすることができます。フロアが多い分、吹き抜けによる空間の広さを演出したり、時にはプライバシーを重視した間取りとすることも可能です。ただし階段も多くなるため、大型家具や家電の搬入には十分に注意が必要です。また、生活動線がどうなるかもしっかりと考える必要があります。
戸建3階の間取りプラン集
当サイトでは、今までに50万をこえる間取図を作成してきました。こちらでは、戸建3階の間取図を紹介します。PDFでダウンロードも可能です。プラン集としてご利用ください。
間取図種類ごとの定義・特徴
※タップで各カテゴリページが開きます。

.png)
.png)
.png)
.png)
.png)
.png)
.png)
.png)
.png)
.png)
.png)
.png)
.png)
.png)
.png)
.png)
.png)
.png)
.png)
.png)
.png)
.png)
.png)
.png)
.png)
.png)
.png)
.png)
.png)
.png)
.png)
.png)
.png)
.png)
.png)
.png)
.png)
.png)
.png)
.png)
.png)
.png)
.png)
.png)










































































