テラスや専用庭は、外部を楽しむ為の空間であり、敷地の広さに余裕があれば、戸建住宅によくある間取りです。いわゆる庭のある家です。そんな、一軒家の理想像とも言える庭ですが、マンションでも、テラスや専用庭のある間取りがあります。これは、マンションの1階部分の特権とも言い換えられます。通常のマンションでは、2階以上はバルコニー(ベランダ)となるので、洗濯物を干し、多少のガーデニングが可能となる程度ですが、庭となると話は別です。今回は、1階にテラスや専用庭のある間取り紹介や、戸建住宅の庭との違い等を解説します。

テラスイメージ
※このサイトは広告が含まれております。リンク先の他社サイトにてお買い求めの商品、サービス等について一切の責任を負いません。
テラスと専用庭の違いと定義
始めに、テラスと専用庭の違いをお伝えします。後ほど間取り図で解説しますが、マンションの専用庭付き物件は、テラスと専用庭がセットになっている場合が殆どです。これには、建物の品質的な側面が関係します。室内から庭へ出る扉が当然有りますが、仮にその扉から直接庭へ出られるとしましょう。この扉は、庭と内部の連続性や、室内に日の光を取り入れる為、マンションのバルコニー(ベランダ)へ出る扉と同じように、一般的にガラスの引戸となっています。

テラスイメージ
さて、外へ出るその1歩目は当然地面になります。もし天候が雨の場合、扉から出てすぐに庭であれば、庭の地面に降った雨が泥水となって跳ね返り、ガラスの扉面の下側に付着してしまいます。さらに、室内と庭との段差をなるべく少なくする為に、扉を下げれば下げるほど、跳ね返った水も扉に付いてしまいます。
そしてもう1つ、仮に室内から直接庭に出られる場合、庭は言い換えれば地面なので、水溜まりが出来易いです。そして水捌けも悪いです。万が一、庭へ出る扉の正面の地面が削れてしまい、水溜まりが出来てしまっては、そもそも庭へ出るのも大変ですが、水溜まりの大きさによっては、室内へ入ってくる可能性もあります。

水捌けが悪い地面
この問題を解決するのがテラスの役割です。簡単にいえば、室内と庭との間にテラスを設け、テラスの床をコンクリートやタイル等のしっかりとした床としてつくってあげます。その床も、庭側に微妙に傾けておくことで、降った雨は全て庭側へ流すことができます。
室内と庭の間にテラスがあることで、雨が降っても室内に雨水が入らない工夫がされているのです。そのような背景から、テラスを定義すると、テラスとは、庭よりも少し高い位置にある、床がコンクリートやタイル、時にはウッドデッキ等で作られた屋外エリアといえます。専用庭とは、その住居に住まわれている方専用の庭であると定義できます。

ウッドデッキのあるテラス
テラス・専用庭付きの間取図サンプル
テラスと専用庭はセットになっているとお伝えしましたが、間取図のチェックポイントを4つに分けて解説します。マンションのテラスは、物件によっては上階のバルコニーが屋根のような役割を果たしている場合もあります。それであれば、多少の雨でもテラスを利用できることもあり、
「テラスや専用庭が部屋とどの様に繋がっているか」
「専用庭に何があると便利か」
を知ることが大切です。
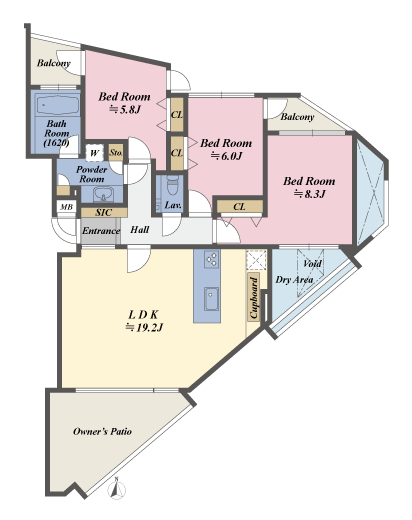
テラス・専用庭付き間取り リビング接続型

テラス
テラスや専用庭があれば、外で食事をしたり、時にはホームパーティやBBQも憧れるでしょう。ガーデニングも十分に楽しめます。お子さんがいれば、夏場にビニールプールを設置したりもできます。そのようなアウトドア全般をリビングの延長のように出来るのが、テラスと専用庭がリビングに接続する間取りです。特に、屋外でのアウトドアを家族で楽しみたい場合は、リビングという団欒部分と屋外が接続することで、リビングそのものが広く使えるイメージですので、とても便利です。
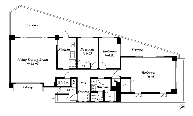
テラス・専用庭付き間取り 寝室接続型

テラス
リビングダイニングが部屋の中央にあり、テラスや専用庭が寝室と繋がっている間取りです。個室に繋がっているので、寝室に外の光や緑のある景色を取り入れたい場合はとても有効です。リビングで過ごすよりも、寝室等の個室で過ごす時間を充実させたい場合は、このような間取りも検討すると良いです。
テラス・専用庭付き間取り 駐車場付専用庭

テラス
マンションの場合、駐車場と部屋は距離があるのが一般的ですが、専用庭が南に面しており、その正面が道路である場合に、駐車場が設けられている場合があります。例えば、車で運搬する荷物が大きいものや、重いものであるときに、効果が絶大です。但し、マンションの専用庭は、駐車場があっても、そこに玄関があることは非常に稀です。これは、2つの理由があります。
1つは、建物はあくまでもマンションですので、マンション全体の入口を通過してから各部屋の玄関にアクセスする事が管理上有効であることです。もう1つは、2階以上は専用庭側がバルコニーですので、バルコニーと玄関は真反対になることがマンションの間取りの通常です。1階のみ玄関の位置を逆にすることは、経済的な合理性に欠けてしまうことです。
つまり、専用庭から室内に入るためには、室内に人がいて鍵を空けておくか、鍵を開けっ放しにしておく必要があります。若しくは専用庭に入る扉があり、駐車場側から鍵を掛けられる場合もありますので、そのような時は、建物側の鍵を開けっ放しでもセキュリティはある程度確保できます。
テラス・専用庭付き間取り SK・地流し付専用庭

テラス
SKや地流しとは専門的な名前ですが、簡単にいえば、洗い物が出来る設備が専用庭にあるかどうかです。

SK・地流し
水道自体は、当然庭の植栽等のメンテナンスに必要となる為、テラス等に付いているのが一般的です。但し、洗い物ができるかどうかは全く別問題となります。例えば、外で洗うものとして、スコップや長靴があったとします。洗っている最中は水を出しっぱなしですので、SKや地流しがあれば、その水は排水溝に流れていきますが、無ければ庭に水溜まりを作ってしまいます。必要かどうかは人によりますが、外に洗い場があると、意外と便利です。
マンションの専用庭と戸建住宅の庭との違いは?
マンションの専用庭は、住んでいる人が専用として利用できる共用部となっていることも多いです。

テラス
この例の間取りでは、専用庭の両脇にそれぞれ扉が付いています。この扉は、万が一の災害時に、各住戸の専用庭を避難経路とする為に存在しています。ですので、このような扉を塞ぐようなものを専用庭に設置するのは、マンションの規則上でも法律的にもNGです。先程、専用庭でBBQに憧れると記載しましたが、残念ながら、一般的にマンションの規則によって、専用庭で火の使用は禁止されています。
火災の危険性があるので当然ですが、例えば、煙が上がると、その煙は上の階のバルコニーにぶつかります。そこで洗濯物が干されていたら?等、近隣トラブルになりやすいのもマンション特有の悩みです。そのようなトラブルを未然に防ぐため、マンションの規則によって、専用庭での禁止事項が定められています。戸建住宅の庭は、個人の敷地内ですので、個人的な責任範囲の中で、庭で何を行ってよいかを判断できますが、マンションの場合は、マンションのルールの中で、行えること・行えないことを定めています。近隣トラブルを防ぐためにも、専用庭付きの物件の場合、よく確認しておきましょう。
テラス・専用庭付き間取りのまとめ
テラスや専用庭は、家に屋外空間が出来る為、様々な楽しみ方が可能です。そのテラスが部屋のリビングに接しているのか、寝室に接しているのかで使い勝手も異なります。家族で楽しみやすいのはリビングに接している間取りですし、個人の部屋(寝室)を充実させたいのであれば、寝室に接している間取りがおすすめです。但し、マンションの専用庭で行ってよいこと、行ってはいけないことが、それぞれのマンションの規則で定められている為、よく確認しておくことで、近隣とのトラブルも防ぐことができ、より間取りを使いこなした生活ができるはずです。
テラス・専用庭付きの間取りプラン集
当サイトでは、今までに50万をこえる間取図を作成してきました。こちらでは、テラス・専用庭付きの間取図を紹介します。PDFでダウンロードも可能です。プラン集としてご利用ください。
間取図種類ごとの定義・特徴
※タップで各カテゴリページが開きます。

.png)
.png)
.png)
.png)
.png)
.png)
.png)
.png)
.png)
.png)
.png)
.png)
.png)
.png)
.png)
.png)
.png)
.png)
.png)
.png)
.png)
.png)
.png)
.png)
.png)
.png)
.png)









































































