バルコニーは家の敷地内にある外部空間として、洗濯物を干したり、時にはアウトドアやガーデニングを楽しんだりと、色々な使い方があります。今回はそんなバルコニーのある様々な間取りや、ベランダ、テラスとの違い等を解説します。
※このサイトは広告が含まれております。リンク先の他社サイトにてお買い求めの商品、サービス等について一切の責任を負いません。
バルコニーの定義

バルコニーイメージ
実はバルコニーには、明確な定義がありません。2階以上にある外部的な空間をそう呼びますが、呼び方は様々です。バルコニーと一般的に使い分けられているのは、ベランダ、テラス等があります。あくまで日本の一般的な使い分けとして紹介します。
- バルコニー・・・屋根のない屋外部分
- ベランダ・・・屋根のある屋外部分、マンション等の屋外部分
- テラス・・・屋根の有無というより、床をウッドデッキにしたり、椅子や机を置けるようなスペース
名称は、あくまでも一般的な使い分けですので、大切なことは、ベランダやバルコニーがどこにあるか、です。
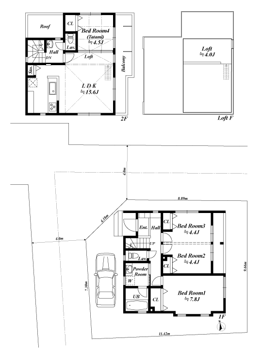
バルコニーやベランダ、テラスの間取図サンプル
バルコニーとベランダは、屋根の有無で使い分けられているとよく言われますが、それはあくまでも英語のバルコニー(balcony)とベランダ(veranda)の場合です。英語の場合は、2階以上にあるものをバルコニーと呼び、1階の屋外空間や最上階の屋上部分をバルコニーと呼びます。ですが、現在ではベランダという呼び方もあまり一般的ではないそうです。日本でも、バルコニーとベランダの使い分けは微妙なところです。特に、マンション等のベランダは間取図ではバルコニーと記載することも多いです。先ずは一般的なベランダ(バルコニー)の間取図から見てみましょう。
ベランダ(バルコニー)の間取図サンプル

バルコニー

バルコニー
一般的にベランダと呼ばれるものです。但し、間取図で同じようなものでも、バルコニーと書かれている場合も多いので、あくまでも一般的な名称といったところです。建物から床が跳ね出しており、それが積層する、つまり上の階のベランダがあることで屋根の役割も果たしています。屋根があれば、洗濯物を干しているときの急な降雨があっても、多少な雨であれば、以外と大丈夫というメリットがあります。ベランダやバルコニーの奥行がどれくらいあるかで、洗濯物を干す際に、天気を気にせずに干せるかの判断をすると良いです。
また、配置は非常に重要です。右の例は部屋に面していますが、右の例はLDKに面しています。考え方はそれぞれありますが、ベランダやバルコニーの奥行が狭い場合は、殆ど洗濯物を干すだけのスペースとなりがちです。その場合は、寝室に面している方が洗濯物を取り込みやすいというメリットがあります。
一方で、ベランダやバルコニーの奥行が多少あるので、ベンチを置いてみたり、ガーデニングをしてみたりという過ごせる場所として利用したい場合は、リビングやダイニングに面している方が、日頃から目も届きやすいので良いです。
バルコニーの間取図サンプル
ベランダと同じ区分けではないバルコニーを3つ紹介します。
ルーフバルコニー

ルーフバルコニー

ルーフバルコニー
ルーフバルコニーとは、下の階の屋根を利用したバルコニーです。屋根上の場所ですので、ルーフバルコニーには屋根が無い場合が殆どです。マンションの上層階にもよく見られるので、一軒家でなくとも見つけることが出来ます。一軒家の場合は、屋上階をルーフバルコニーとしており、マンションの場合は下の階の屋根をルーフバルコニーとしています。一般的なベランダと比べて、非常に広い空間を確保できるという特徴があります。ですので、間取りとして考えた場合、ルーフバルコニーがリビングやダイニングに近いと、屋外で食事を楽しむことや、時にはホームパーティー等もしやすくなります。

マンションのルーフバルコニーイメージ
つまり、マンションの場合は、部屋に近い部分がルーフバルコニーとなっていますので、その配置によっては、かなり有効に利用できます。一方で一軒家の場合は、屋上部分ですので、普段から使うというよりも、ガーデニングスペースとして利用することが多くなります。
インナーバルコニー

インナーバルコニー
インナーバルコニーは殆どの場合、一軒家の特権です。ベランダやバルコニーは建物から跳ね出した作りとなっていますが、インナーバルコニーは建物の内部に埋め込まれたような屋外空間となっています。その為、屋根付きであることも一般的です。記事の最初に述べましたが、バルコニーの屋根は洗濯物という目線で見た場合には、とても有効です。豪雨ではどうしようもないですが、晴れの日以外でも洗濯物を干せることで、家事を溜めないことが出来ます。
建物右上がインナーバルコニー

インナーバルコニーイメージ
但し、これもあくまでも一般的な名称であって、例えばルーフバルコニーのように下の階の屋根上を利用したバルコニーで、手すりではなく壁で囲われたような空間となっている場合も、インナーバルコニーと呼ばれたりします。
壁によって空間を使い易くしているインナーバルコニー(ルーフバルコニー)

インナーバルコニーイメージ
サービスバルコニー
サービスバルコニーはサブバルコニーともいわれ、人が屋外空間を楽しんだり洗濯物を干したりするスペースではなく、エアコンの室外機置場や、キッチン横にあって、一時的にごみ置き場にできたりと、あくまでもサブ要素のバルコニーです。あれば便利!というものもあれば、エアコンの室外機を置く為だけに用意されている場合もあります。キッチン横のサービスバルコニーは色々と便利ですので良いですが、部屋の横にあるサービスバルコニーは、もはやバルコニーではなく、室外機置場だろ!とつっこみたくなる間取りも存在している為、サービスバルコニーという表現には注意が必要です。
キッチン横のサービスバルコニー

サービスバルコニーイメージ
テラスの間取図サンプル

テラス
ベランダやバルコニーに対して、屋外スペースとして床材がウッドデッキ等で作られているものを一般的にテラスと呼びます。テラスは、洗濯物を干すというよりも、屋外空間を楽しむ為のスペースです。机や椅子を並べられるだけの広さがある場合が多いので、リビングやダイニングの隣にある場合が多いです。こうしたテラスがあると、マンションのルーフバルコニーのように、屋外で食事やパーティーを楽しむことも可能です。天気が良く、外でも過ごしやすい気候の春や秋に、テラスでの食事を楽しんでみるものありかもしれません。

テラスイメージ
バルコニーの間取りのまとめ
バルコニーは、ベランダやテラスのように、呼び名は様々にありますが、屋外を家に作り出す空間です。広さや奥行、屋根の有無によって、洗濯物等の家事のし易さだけでなく、配置によっては、食事や団欒スペースにすることも可能です。日本では、気候の都合上、あまり家の屋外で過ごす文化はありませんが、インナーバルコニーのように屋根がしっかりとあり、広さもあれば、簡単に外で時間を過ごすことも出来ます。家の内部だけでなく、外部までも楽しめる間取りを探してみるもの楽しいですよ。
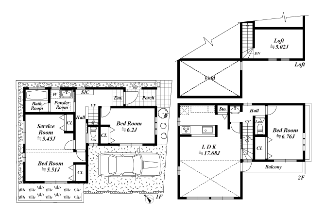
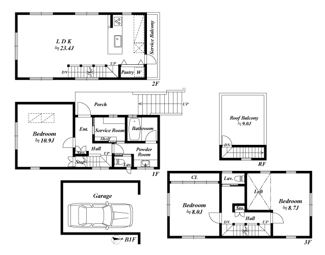
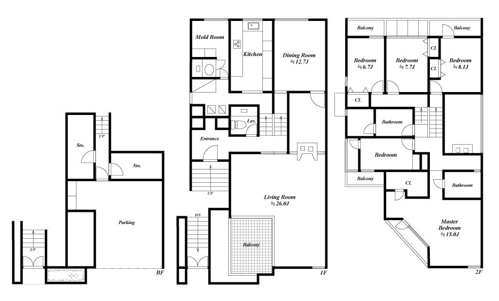
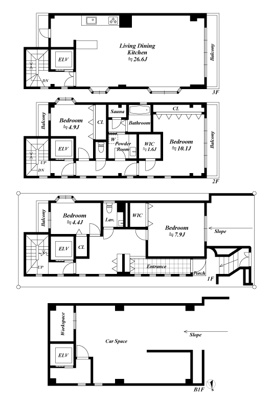
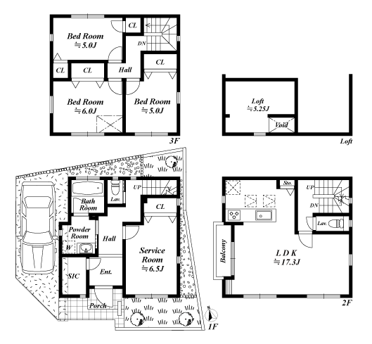
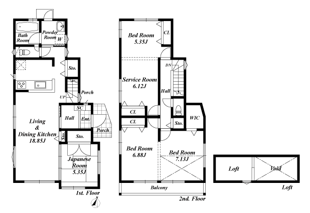
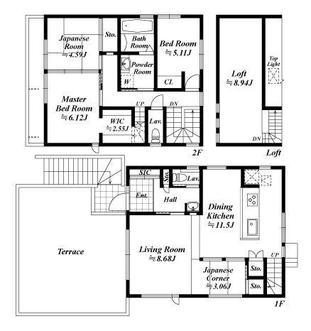
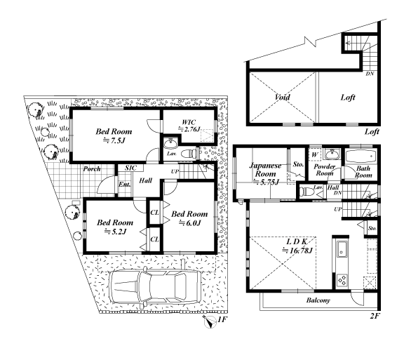
バルコニーのある間取りプラン集
当サイトでは、今までに50万をこえる間取図を作成してきました。こちらでは、バルコニー付き間取図を紹介します。PDFでダウンロードも可能です。プラン集としてご利用ください。
間取図種類ごとの定義・特徴
※タップで各カテゴリページが開きます。

.png)
.png)
.png)
.png)
.png)
.png)
.png)
.png)
.png)
.png)
.png)
.png)
.png)
.png)
.png)
.png)
.png)
.png)
.png)
.png)
.png)
.png)
.png)
.png)
.png)
.png)
.png)
.png)
.png)
.png)
.png)
.png)
.png)
.png)
.png)
.png)
.png)
.png)
.png)
.png)
.png)
.png)
.png)
.png)
.png)
.png)
.png)
.png)
.png)
.png)
.png)
.png)
.png)
.png)
.png)
.png)
.png)
.png)
.png)
.png)









































































