メゾネットという言葉を聞いたことがある方もいらっしゃるかもしれません。今回は、具体的にメゾネットってどんな住宅なの?ロフトとの違いは何?という疑問にお応えすべく、具体的な間取図から、ロフトとの違い等を解説します。
※このサイトは広告が含まれております。リンク先の他社サイトにてお買い求めの商品、サービス等について一切の責任を負いません。
メゾネットの定義

メゾネットイメージ
メゾネットとは、住戸が2階建てとなっているマンションの間取りと定義できます。2階建てや3階建ては、戸建て住宅の特権と思われがちですが、マンションでもそうした物件があり、平面上にならんでいるマンションの一般的な間取りとは違った使い方が出来ます。マンションの最上階の2フロア分をメゾネットとして販売している物件もありますが、フロアが多い分、一般的なマンションの価格よりは高めの設定です。ですが、広々とした間取りも多く、戸建て住宅を建てにくい土地で戸建てのような間取りを探す方もいらっしゃるので、ニーズのある間取りと言えます。
メゾネットの間取図サンプル
さっそく、間取図を確認しましょう。メゾネットの間取りを確認する際に注目したいのは吹き抜けの有無です。
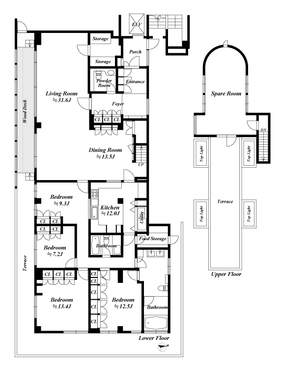
メゾネット 吹き抜け有りの間取り

メゾネット
メゾネットで吹き抜けがあるタイプの間取りは、まさに高級住宅タイプです。リビングが吹き抜けていることが一般的です。天井が2フロア分まで上がっているので、とても広々とした空間のイメージとなります。上の階に寝室が配置されることによって、住んでいる方のプライバシーを確保しつつ、来客にも十分対応できるので、住宅の間取りとしては高級タイプです。
また、物件により異なりますが、バルコニーを下のフロアと上のフロアの両方に設置できます。通常のマンションでは、リビングを南側に向け、リビングに接続するようにバルコニーを設置しますので、バルコニーは南向きとなります。しかし、メゾネットの場合、タワーマンションで販売することも多い為、バルコニーが南に向いて計画されているとは限りません。逆に、バルコニーが南に向いていれば、上の階のバルコニーは反対の北側に向いていることも多く、北側の部屋は日の光が直接部屋に入ってくることが無いので、部屋の明るさを実際の物件を見て確認した方が良いです。
さて、この吹き抜けですが、開放的な空間を演出する反面、空調が利きにくいというデメリットが生じます。上下の高さがあるので、冬は暖房された空気が上のフロアへ上がってしまい、リビングが寒いという現象もあり得ます。建物を設計する側も当然わかっているので、リビングには床暖房が設置されている可能性が高いですが、冷暖房設備はしっかりと確認しておきましょう。
メゾネット 吹き抜け無しの間取り

メゾネット
吹き抜けの無い間取りは、吹き抜け有りの間取りの弱点である空調効率という点で、通常のマンションの間取りと変わらない性能を確保し易いです。その分、吹き抜けという広さを感じる空間はありませんので、一般的なマンションで暮らしている場合と大差は感じにくいです。より、戸建て住宅に近いイメージとなります。
ただし、マンションの場合、部屋の専有面積に気を使いますが、階段がある分、2LDKや3LDKといった一般的なマンションの間取りに対して、有効に使える面積が狭くなります。また、戸建てでは当たり前ですが、階段は足を滑らす、転ぶ等の危険性も高い部分です。吹き抜けに設置される階段は、一般的に階段の一段の高さが低く設定されますが、吹き抜けの無い間取りの場合は、有効面積に気を使いがちなので、階段の一段の高さが高く、より危険性が高い可能性もありますので、メゾネット住宅を見に行った際には、必ず階段を歩き、自分で確かめましょう。
メゾネットと間違えやすい間取り図の種類を解説
メゾネットは複数階にまたがる住戸で、ロフトは主に寝室や収納用の半階層のスペースです。それぞれの違いを詳しく解説します。
メゾネットとロフトの違いは?
間取図を見比べてみましょう。

メゾネットの間取図

ロフト
同じマンションの間取りで比べます。部屋の広さの違いはありますが、吹き抜けがあって階段があるので、一見同じように見えます。しかし、間取図ではわかりにくい、平面ではなく断面方向に明確な違いがあります。それは言い換えると、高さに違いがあります。メゾネットは、2フロアを1つの住戸にしています。
一方ロフトは、1フロアを2フロアに見せているといえます。ロフトはそもそも、専門的には「屋根裏収納等」と呼ばれ、あくまでも部屋ではなく収納スペースです。ロフトの天井高さは1.4m以下と法律によって定められている為、ロフト部分の天井高さは、大人が立てる高さではなく、その背景から、吹き抜け高さもメゾネットと比べれば当然低くなります。また、ロフトで上がる階段も、地方の法律によって変わりますが、梯子程度のものとなっている場合も多いです。2階建てがメゾネット、梯子で上がれる収納があるのがロフトという違いがあるのです。
メゾネット 間取りのまとめ
メゾネットとは、マンションの2階建て住戸を意味します。吹き抜けに階段があるのか、ただ2階建てとなっているのかで、空調の効率性や階段の計画が変わります。一般的なマンションと比べて、フロアがある分家賃が高いですが、同じ間取りの一般的なマンションと比べて、階段の面積分だけ部屋として使用できる面積は減ってしまう為、実際に建物を見て、住みやすさ等を確認するとよいでしょう。
メゾネットの間取りプラン集
当サイトでは、今までに50万をこえる間取図を作成してきました。こちらでは、メゾネットの間取図を紹介します。PDFでダウンロードも可能です。プラン集としてご利用ください。
間取図種類ごとの定義・特徴
※タップで各カテゴリページが開きます。

.png)
.png)
.png)
.png)
.png)
.png)
.png)







































































