4LDK以上の間取りってどんな間取りなの?使い勝手はどうなの?そんな疑問にお応えすべく、本記事では4LDK以上の間取りの解説から、戸建て住宅とマンションの住まい方の違い等をお伝えします。
※このサイトは広告が含まれております。リンク先の他社サイトにてお買い求めの商品、サービス等について一切の責任を負いません。
4LDK以上の定義

4LDKイメージ
4LDKとは、広さ10帖(畳)以上のリビングダイニングキッチンがあり、かつ4部屋以上の個室が存在している間取りを言います。リビングダイニングキッチンは家族の食事や団欒スペースとして利用するので、個室の数がとても充実している間取りです。こどもが3人以上いても、両親の部屋を含めて全員の個室が確保できます。また、個室が多いことを考慮して、2世帯住宅として利用することも可能です。
4LDK以上の間取図サンプル
さっそく4LDK以上の間取りを見てみましょう。

4LDK

4LDK

5LDK
例では4LDKと5LDKの間取りを紹介します。マンションでは3LDKという間取りがファミリータイプとして非常に一般的です。それにさらに1部屋追加する4LDKは、大きく2つのパターンに分けられます。
4LDK以上の間取り LDK中心型

4LDK
LDKを中心に部屋が構成される一般マンションタイプの間取りです。3LDKの間取りのLDK部分にもう一部屋追加されたような間取りです。LDKがバルコニーに面していない場合もあるので、ベランダへどのように行くのかも考えながら、部屋の使い分けをした方が良いです。
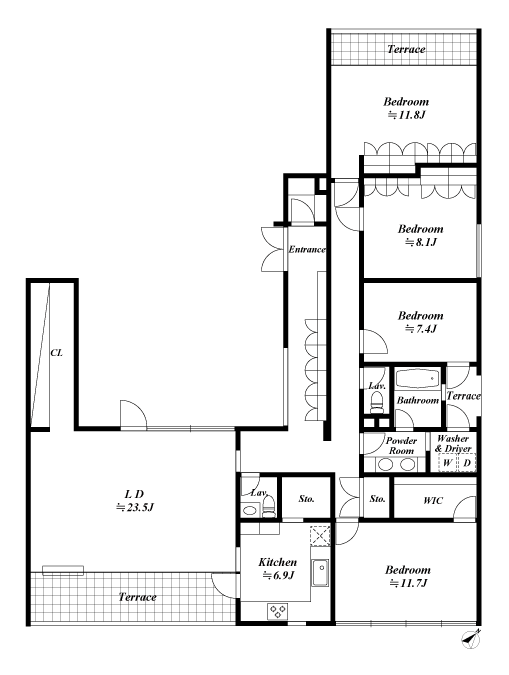
4LDK以上の間取り タワーマンション型


4LDK
高級住宅ですが、タワーマンションでは4LDKは比較的によくあります。タワーマンションの場合は、LDKがきちんとバルコニーに面していながら、それぞれの部屋が長い廊下に接していることで、個室のプライバシーも充実させているパターンが多いです。また、タワーマンションの場合、部屋の周りがバルコニーで繋がっていることで、効率的にぞれぞれの部屋にバルコニーを確保していることがよくあります。お値段は高いですが、4LDKをマンションで実現しようとする場合、このようなタイプのレベルまで視野に入れる必要があります。
4LDK以上の間取り 5LDK


4LDK
5LDKのような間取りをマンションで住む場合、マンションの最上階、つまりペントハウスを考えなくてはなりません。マンションの下階及び中間階で5LDK以上は殆どありません。マンションの最上階は、下の階の間取りの2住戸を1つの住戸としていることが多いので、その場合には5LDKという間取りを見つけやすいです。5LDKともなれば、LDK付近に全ての個室を配置することは難しい為、長い廊下が用意されており、その廊下に個室が充実している間取りが一般的です。
4LDK以上の間取りから考える戸建てとマンションの違いとは?


戸建てとマンションの違い
4LDK以上の間取りに住むことを考えた場合、マンションでは比較的に高級な分類に入ります。しかし、戸建て住宅であれば見つけやすい間取りでもあります。立地はそれぞれ探している場所があるでしょうから一般的として分類できませんが、戸建てかマンションかで間取りとして大きな違いがあります。それは、部屋に階段があるかどうかです。
間取図で比べてみましょう。



マンションの 4LDK


戸建ての4LDK
人により考え方は異なりますが、階段は一番危ない場所となります。こどもも危ないですが、大人になっても足を踏み外すことがあります。慣れていても、慣れているからこそ階段を駆け下りて足を滑らす事例をよく聞きます。一方で、マンションの場合は1つのフロアで部屋が完結していることが多いですので、原則階段がありません。同じフロアに全ての部屋がある為、掃除等の管理面も行いやすい特徴があります。その分、マンションの管理費や修繕積立費等の出費もある為、毎月にかかるお金は多くなります。
4LDK以上の間取りのまとめ
4LDK以上の間取りは、マンションで探す場合は、タワーマンションかマンションの最上階を意味するペントハウス等の高級住宅も視野に入れる必要があります。マンションであれば、LDK(リビングダイニングキッチン)に個室が近接している間取りもありますが、多くは長い廊下があり、その廊下に個室が面することで、各部屋のプライバシーを確保するグレードの高い間取りとなります。4LDK以上の間取りは、戸建て住宅では珍しくはないですが、階段があるかどうかの違い等で、子育てを考えている方はマンションを選択する人も多いようです。
4LDK以上の間取りプラン集
当サイトでは、今までに50万をこえる間取図を作成してきました。こちらでは、4LDK以上の間取図を紹介します。PDFでダウンロードも可能です。プラン集としてご利用ください。
間取図種類ごとの定義・特徴
※タップで各カテゴリページが開きます。

.png)
.png)
.png)
.png)
.png)
.png)
.png)
.png)
.png)
.png)
.png)
.png)
.png)
.png)
.png)
.png)
.png)
.png)
.png)
.png)
.png)
.png)
.png)
.png)
.png)
.png)
.png)
.png)
.png)
.png)
.png)
.png)
.png)
.png)
.png)
.png)
.png)
.png)
.png)
.png)
.png)
.png)
.png)
.png)
.png)
.png)
.png)
.png)
.png)
.png)






































































